TỦ ĐÔNG TIẾP XÚC NEWTECHCO CHO THỦY SẢN – GIỮ TƯƠI NGON, CẤP ĐÔNG AN TOÀN
Trong ngành chế biến thủy hải sản, tốc độ cấp đông quyết định trực tiếp đến chất lượng sản phẩm sau rã đông. Nếu cấp đông chậm, tinh thể đá hình thành lớn sẽ phá vỡ cấu trúc tế bào, làm sản phẩm bị bở, mất nước và giảm giá trị thương mại. Chính vì vậy, tủ đông tiếp xúc Newtechco cho thủy sản là giải pháp tối ưu giúp doanh nghiệp giữ trọn độ tươi ngon và đảm bảo tiêu chuẩn xuất khẩu.
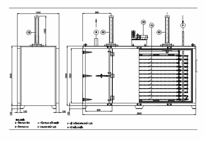
Đây là dòng tủ cấp đông tiếp xúc cấp đông thủy sản dạng block phổ biến trong nhà máy chế biến cá, tôm, mực, surimi và các sản phẩm đông lạnh giá trị cao.

1. Tủ đông tiếp xúc là gì? Nguyên lý hoạt động
Tủ đông tiếp xúc là thiết bị cấp đông nhanh bằng cách truyền nhiệt trực tiếp qua các tấm lắc (plate freezer). Sản phẩm được đặt giữa các tấm nhôm hợp kim có nhiệt độ âm sâu, giúp quá trình trao đổi nhiệt diễn ra nhanh và đồng đều.
Khác với cấp đông gió, tủ cấp đông tiếp xúc có hiệu suất truyền nhiệt cao hơn do bề mặt sản phẩm tiếp xúc trực tiếp với bề mặt kim loại lạnh. Nhờ đó:
-
Rút ngắn thời gian cấp đông
-
Hạn chế mất nước
-
Giữ cấu trúc sản phẩm ổn định
Hệ thống này đặc biệt phù hợp cho cấp đông dạng block tiêu chuẩn xuất khẩu.

2. Ưu điểm nổi bật của tủ đông tiếp xúc Newtechco
- Cấp đông nhanh – giữ nguyên chất lượng
Thời gian cấp đông nhanh giúp tinh thể đá hình thành nhỏ, hạn chế phá vỡ cấu trúc tế bào. Điều này đặc biệt quan trọng với tôm, cá fillet và các sản phẩm xuất khẩu yêu cầu cao về cảm quan, đảm bảo nhiệt độ ổn định, đồng nhất trên toàn bộ bề mặt tấm lắc.
- Vật liệu cao cấp – an toàn thực phẩm
– Tấm lắc bằng hợp kim nhôm truyền nhiệt cao
– Toàn bộ chi tiết trong và ngoài tủ bằng Inox SUS 304
– Vật liệu chống sét rỉ, bền bỉ trong môi trường biển
Cách nhiệt bằng Polyurethane Foam tỷ trọng 40–43kg/m³, hai mặt inox 304 giúp giảm thất thoát nhiệt tối đa.
- Linh kiện chính hãng – vận hành ổn định
Tủ đông tiếp xúc sử dụng linh kiện từ các thương hiệu uy tín:
– Van tiết lưu
– Van điện từ
– Mắt gas
– Phin lọc gas
– Rờ le áp suất
– Thương hiệu: Danfoss, Emerson
- Đạt tiêu chuẩn HACCP / FDA
Sản phẩm cấp đông phù hợp tiêu chuẩn an toàn thực phẩm hiện hành, đáp ứng yêu cầu xuất khẩu sang các thị trường khó tính như EU, Mỹ, Nhật Bản.
- Linh hoạt công suất – dễ vận hành
Newtechco thiết kế công suất theo nhu cầu cụ thể:
– Nhà máy nhỏ
– Xưởng chế biến vừa
– Doanh nghiệp xuất khẩu quy mô lớn
– Việc lắp ráp, vận hành, vệ sinh và bảo trì rất đơn giản, không tốn nhiều thời gian.
3. Ứng dụng của tủ cấp đông tiếp xúc cấp đông thủy sản
- Cấp đông tôm xuất khẩu: Giữ nguyên màu sắc, độ bóng và cấu trúc thịt.
- Cấp đông cá fillet: Giảm thất thoát nước khi rã đông, đảm bảo trọng lượng thương mại.
- Cấp đông mực – bạch tuộc: Đảm bảo độ đàn hồi và cảm quan tự nhiên.
- Sản xuất block surimi: Định hình block đồng đều, thuận tiện vận chuyển và lưu kho.


4. Vì sao nên chọn hệ thống tủ đông tiếp xúc của Newtechco?
Newtechco không chỉ cung cấp thiết bị mà còn tư vấn giải pháp tổng thể:
✔ Thiết kế đồng bộ theo mặt bằng nhà xưởng
✔ Tối ưu tải nhiệt – tiết kiệm điện năng
✔ Cung cấp trọn gói hệ thống lạnh đi kèm
✔ Hỗ trợ kỹ thuật và bảo trì dài hạn
Với kinh nghiệm triển khai nhiều dự án trong lĩnh vực thủy sản, Newtechco cam kết mang đến tủ đông tiếp xúc chất lượng cao, độ bền vượt trội và hiệu quả kinh tế lâu dài.
FAQ – Câu hỏi thường gặp
1. Tủ đông tiếp xúc khác gì so với cấp đông gió?
Tủ đông tiếp xúc truyền nhiệt trực tiếp qua các tấm lắc kim loại, giúp tốc độ cấp đông nhanh hơn so với cấp đông gió. Nhờ đó, tinh thể đá nhỏ hơn, hạn chế phá vỡ cấu trúc tế bào và giữ chất lượng thủy sản tốt hơn sau rã đông.
2. Thời gian cấp đông của tủ cấp đông tiếp xúc là bao lâu?
Tùy vào độ dày block và loại sản phẩm (tôm, cá, mực…), thời gian cấp đông thường dao động từ 1,5 – 3 giờ. Với tủ cấp đông tiếp xúc cấp đông thủy sản đúng công suất, sản phẩm đạt nhiệt độ tâm ≤ -18°C nhanh chóng và ổn định.
3. Hệ thống tủ đông tiếp xúc có tiết kiệm điện không?
Có. Do truyền nhiệt trực tiếp nên hiệu suất trao đổi nhiệt cao, giảm thời gian vận hành máy nén. Nếu được thiết kế tối ưu, hệ thống tủ đông tiếp xúc có thể tiết kiệm đáng kể chi phí điện năng so với phương pháp cấp đông truyền thống.
4. Tủ đông tiếp xúc có phù hợp tiêu chuẩn xuất khẩu không?
Có. Thiết bị của NewTechCo sử dụng inox SUS 304, linh kiện Danfoss – Emerson và đáp ứng tiêu chuẩn HACCP/FDA, phù hợp cho nhà máy chế biến thủy sản xuất khẩu sang EU, Mỹ, Nhật Bản.
5. Newtechco có thiết kế theo yêu cầu riêng không?
Có. Chúng tôi tư vấn và thiết kế công suất theo sản lượng thực tế của từng nhà máy, đảm bảo phù hợp mặt bằng, nhu cầu sản xuất và ngân sách đầu tư.
Bạn đang cần:
✔ Tủ đông tiếp xúc công suất phù hợp nhà máy
✔ Tủ cấp đông tiếp xúc cấp đông thủy sản đạt chuẩn xuất khẩu
✔ Hệ thống tủ đông tiếp xúc đồng bộ, tiết kiệm điện
✔ Thiết kế – lắp đặt trọn gói từ A–Z
✔ Báo giá minh bạch, không phát sinh chi phí ẩn
👉 Liên hệ Newtechco ngay hôm nay để được tư vấn miễn phí và khảo sát thực tế!
CÔNG TY CỔ PHẦN KỸ THUẬT CƠ ĐIỆN NHIỆT LẠNH NEWTECHCO
Địa chỉ : 107/6/2 Đường số 38, P. Hiệp Bình, TP.HCM.
Email: sale.refnewtechco@gmail.com
Hotline: 0982.456.257 / 0903.864.230 (Zalo/Viber/WhatsApp)
sale.refnewtechco@gmail.com

0982.456.257